Deze opvallend ruime en fijne eengezinswoning met beschutte ligging is keurig onderhouden en zo te betrekken. De woning is geheel voorzien van hardhouten kozijnen en dubbele beglazing met HR++ glas. Daarnaast zijn zowel dak, muren als vloer volledig geïsoleerd.
De woning ligt in de Dronenwijk. een rustige en kindvriendelijke omgeving. Dichtbij vindt u verschillende scholen en sportverenigingen.
Neem een kijkje in de woning en laat u verrassen door de mooie lichtinval, de gezellige sfeer en de fraai aangelegde voor- en achtertuin. Bel ons voor een afspraak en wij leiden u graag aandachtig rond door de woning. Gedurende deze bezichtiging zullen wij u uitgebreid nog meer details vertellen.
INDELING
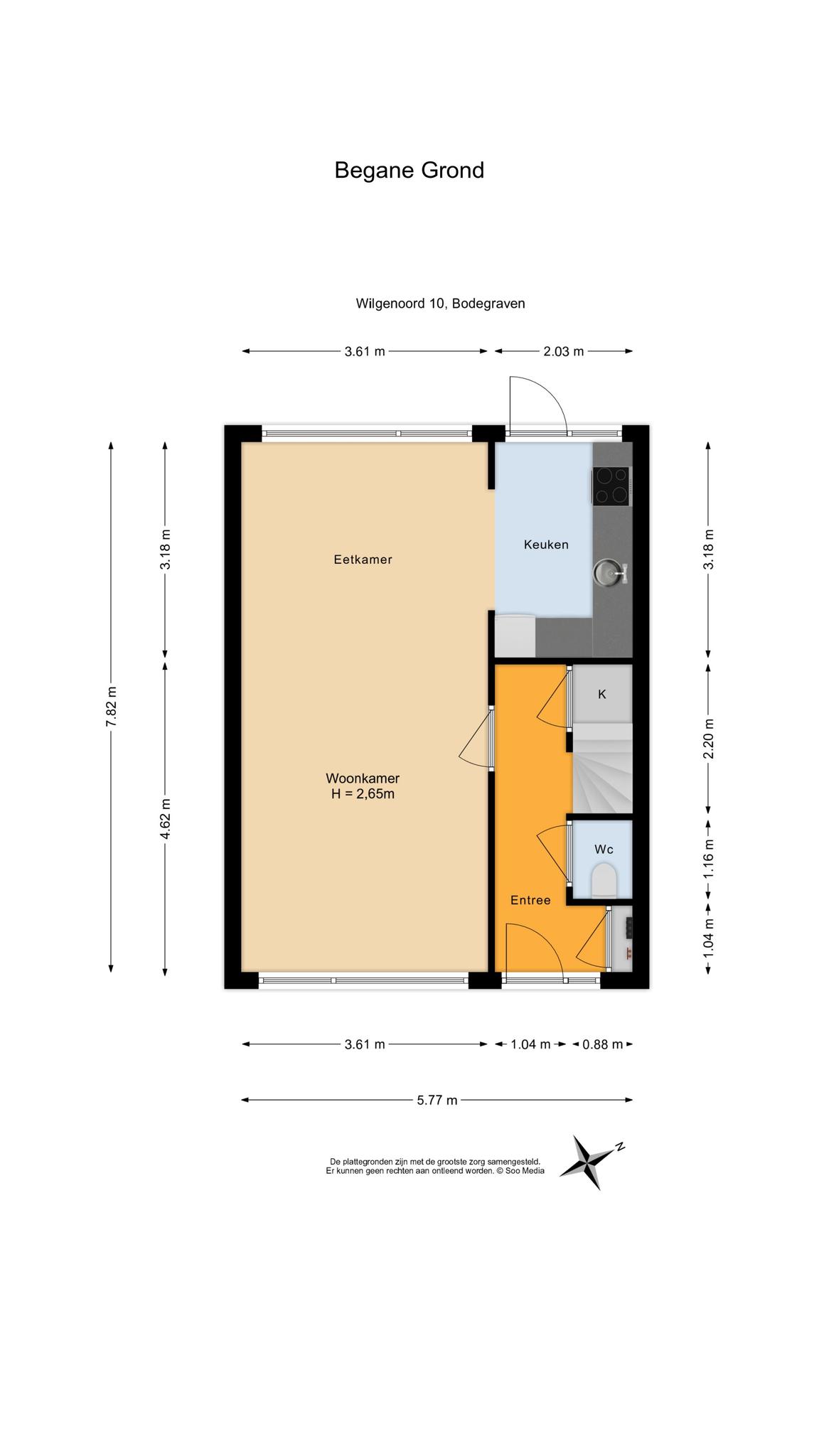
begane grond: hal, meterkast (elektra: 1 krachtstroomgroep, 6 gewone groepen, 2 aardlekschakelaars en slimme meters), modern toilet, trapkast met provisieruimte, doorzonwoonkamer met prachtige houten vloer, een open keuken met diverse inbouwapparatuur en veel kastruimte.
Op de begane grond vindt u ook de fraai aangelegde achtertuin op het zuidoosten met achterom en voortuin met veel groen. Zowel de voor- als achtertuin hebben een buitenkraan. In de achtertuin staat ook een vrijstaande stenen schuur voorzien van elektra (8m2).
Terug naar de woning:
Een vaste trap brengt u vanaf de hal naar de…….
1e verdieping met 3 slaapkamers, badkamer met modern toilet, een douchecabine en enkele wastafel met meubel. De badkamer is voorzien van mechanische ventilatie.
Vanaf de 1e verdieping is er een vaste trap naar de…….
2e verdieping met respectievelijk een overloop en was- en stookruimte (CV ketel Nefit 2017) en een grote kamer met dakkapellen voor en achter voorzien van kunststof kozijnen en HR++ glas. Aan beide zijden is er elektrische zonwering. Er zijn ook knieschotten met extra bergruimte
BIJZONDERHEDEN:
– 116 m2 woonoppervlakte, 385 m3 inhoud, 133m2 perceeloppervlakte
– Bouwjaar 1970
– Onderhoud binnen en buiten goed
– Volledig geïsoleerd
– Zonnige tuin op het zuidoosten
– Begane grond heeft handmatige zonwering aan beide zijden
– 1e en 2e verdieping hebben elektrische zonwering aan beide zijden
– Hele voor- en achtergevel vervangen met spouwmuur.
– CV ketel 2017
– Hardhouten kozijnen met dubbele beglazing en HR++ glas
BEREIKBAARHEID:
Het station bevindt zich op loopafstand. Het mooie groene park met o.a. water en diverse speeltoestellen ligt op steenworp afstand. Ook diverse scholen in de directe omgeving. Uitvalswegen N11 en A12 zijn dichtbij. Er is voldoende parkeergelegenheid bij de woning.
Heeft de woning uw aandacht getrokken?
Bel dan nu voor een afspraak en we leiden u graag rond door de woning. T: 0235287676
| Overdracht | |
|---|---|
| Prijs | € 350.000,- k.k. |
| Status | Verkocht |
| Aanvaarding | In overleg |
| Aangeboden sinds | 12 oktober 2021 |
| Bouw | |
|---|---|
| Type object | Woonhuis |
| Soort | Eengezinswoning |
| Type | Tussenwoning |
| Bouwjaar | 1968 |
| Dak type | Zadeldak |
| Isolatievormen | Dakisolatie, Muurisolatie, Vloerisolatie, Dubbelglas, HR glas |
| Oppervlaktes en inhoud | |
|---|---|
| Perceel | 133 m2 |
| Woonoppervlakte | 116 m2 |
| Inhoud | 380 m3 |
| Buitenruimtes gebouwgebonden of vrijstaand | 27 m2 |
| Tuinoppervlakte | 52 m2 |
| Indeling | |
|---|---|
| Aantal kamers | 5 |
| Aantal slaapkamers | 4 |
| Locatie | |
|---|---|
| Ligging | In woonwijk, Vrij uitzicht, Beschutte ligging |
| Tuin | |
|---|---|
| Type | Achtertuin |
| Staat | Fraai aangelegd |
| Ligging | Zuidoost |
| Achterom | Ja |
| Energieverbruik | |
|---|---|
| Energielabel | B |
| Uitrusting | |
|---|---|
| Soorten warm water | CV ketel |
| Parkeer faciliteiten | Openbaar parkeren |