english text below
Sprookjes bestaan
Een karakteristiek familiehuis met een heerlijke tuin en een garage voor twee auto’s op loopafstand van het bruisende centrum van Haarlem, een locatie om verliefd op te worden.
Op een van de mooiste plekjes van de Leidsevaart, ligt dit royale hoekherenhuis (225 m2).
Het huis heeft veel lichtinval en prachtige hoge plafonds van 3,50 m. De woning is altijd zeer liefdevol bewoond en met respect voor de historie verbouwd. Ook aan verduurzaming is veel aandacht geschonken en dat merkt u aan uw energiekosten.
Het huis beschikt over maar liefst 6 slaapkamers en twee badkamers. Een zonnige besloten achtertuin op het westen met fruitbomen (17 m!).
De ligging van dit fraaie herenhuis is ideaal: aan de voorzijde is er vrij uitzicht over de vaart en kijkt u schuin naar de prachtige Stadsschouwburg van Haarlem. Binnen 5 minuten lopen staat u in de Grote Houtstraat die uitkomt op de Grote Markt met haar vele terrasjes, winkels en uitgaansleven. De officiële wandelroute van Haarlem leidt u vanaf uw voordeur door de creatieve Vijfhoek naar de terrassen. Vlakbij ligt de Kathedraal St. Bavo en de Haarlemmerhout. Duinen en strand zijn eenvoudig per fiets bereikbaar.
Leg de boot voor de deur en maak een tocht over de grachten of bezoek Spaarndam en de bollenstreek. Vanaf huis kunt u zelfs naar Leiden of Amsterdam varen.
Parterre: entree met dubbele voordeur, vestibule met meterkast, gang met de originele marmeren vloer en trapkast, toilet met gietijzeren stortbak en fonteintje en een ruime droge (wijn)kelder met stahoogte. De woning heeft een royale dubbele kamer en suite met aan de voor- én zijkant prachtige hoge ramen waardoor de woonkamer extra licht is. De glas in lood suite deuren zijn gebrandschilderd en de begane grond heeft fraaie ornamenten plafonds. De originele visgraat vloer van tropisch hout, paneeldeuren en de schouwen ademen nog helemaal de tijd van toen. In de voorkamer vindt u een originele kachel (voor hout of steenkool), in de zitkamer een open haard. Door de tweede set suite deuren komt u in de sfeervolle lichte serre. Hier ligt een vloer van Belgisch hardsteen met vloerverwarming en de serre heeft naast een groot dakvenster, dubbele openslaande deuren naar de zonnige, op het westen gelegen achtertuin met schuur, tuinkas én garage voor maar liefst 2 auto’s. De keuken is voorzien diverse apparatuur zoals: een 5 pits Boretti fornuis, Amerikaanse koelkast, een schouw met afzuiging en een ingebouwde vaatwasser. Hier is ook nog een grappig oud doorgeefluikje naar de living waar vroeger het personeel gebruik van maakte.
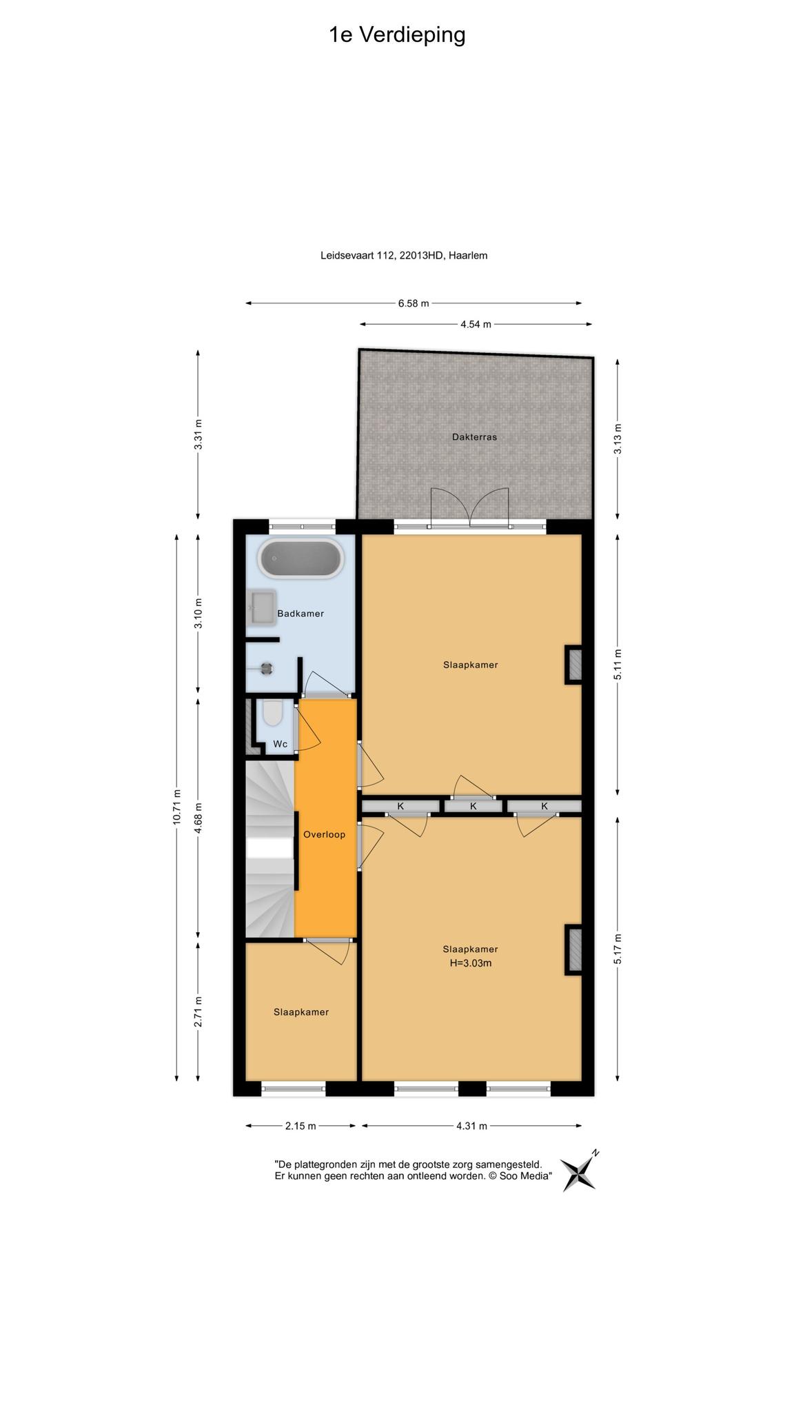
1e etage: overloop. Twee royale slaapkamers en een 3e kleinere slaapkamer/werkkamer. Allen met de originele houten vloeren. De slaapkamer aan de achterzijde is voorzien van openslaande deuren naar het zonnige dakterras. De slaapkamer aan de voorzijde kijkt uit over de Leidsevaart. Verder is er aan de achterzijde een badkamer met een prachtig gietijzeren bad op pootjes, een separate douche en een wastafel. Naast de badkamer is een separaat toilet.
2e etage: overloop. De zeer royale kamer aan de voorzijde heeft een extra etage. Het is een appartement op zich. Het trapje naar boven geeft toegang tot de slaapruimte. Verder heeft deze kamer een kast waar de technische ruimte zich in bevindt.
Aan de voorzijde vindt u de tweede badkamer met douche, toilet (sanibroyeur) en wasmachine en droger opstelling.
Op deze etage zijn nog twee slaapkamers aan de achterzijde.
Bijzonderheden:
Toplocatie op loopafstand van het centrum
Heerlijk familiehuis met veel originele details zoals de hoge plafonds met ornamenten, hal met marmeren vloer, authentieke architraven en paneeldeuren en natuurlijk die prachtige gebrandschilderde suitedeuren.
Bouwjaar 1890, woonoppervlakte 225 m2
Over de volle breedte een onder architectuur aangebrachte serre met zinken puntdak (2005)
Een grote besloten achtertuin op het westen met een volwassen wilg en diverse fruitbomen.
Een ruim dakterras waar je tot laat in de avond van de zon kan genieten.
Voorzien van zonnepanelen (12 stuks, 2015) en een zonneboiler
De daken zijn vernieuwd en geïsoleerd (2001), garagedak vernieuwd (2006)
De gevels zijn gestraald en opnieuw gevoegd (2001)
Muren en vloeren zijn geïsoleerd (2017)
Zie plattegronden voor de afmetingen en indeling.
Fairy tales exist
A characteristic family house with a lovely garden and a garage for two cars within walking distance of the bustling center of Haarlem, a location to fall in love with.
This spacious corner townhouse (225 m2) is located on one of the most beautiful spots on the Leidsevaart.
The house has a lot of light and beautiful high ceilings of 3.50 m. The house has always been very lovingly inhabited and renovated with respect for the history. Much attention has also been paid to sustainability, which you will notice in your energy costs.
The house has no less than 6 bedrooms and two bathrooms. A sunny private backyard on the west with fruit trees (17 m!).
The location of this beautiful mansion is ideal: at the front there is an unobstructed view over the canal and you look at the beautiful Stadsschouwburg of Haarlem. Within a 5-minute walk you are in the Grote Houtstraat, which leads to the Grote Markt with its many terraces, shops and nightlife. The official walking route of Haarlem leads you from your front door through the creative neighborhood ‘De Vijfhoek’ to the terraces. Nearby is the St. Bavo Cathedral and the Haarlemmerhout. Dunes and beach are easily accessible by bicycle.
Park the boat in front of the door and take a trip on the canals or visit Spaarndam and the bulb region. From home you can even sail to Leiden or Amsterdam.
Ground floor: entrance with double front door, vestibule with meter cupboard, corridor with the original marble floor and stair cupboard, toilet with cast iron cistern and sink and a spacious dry (wine) cellar with headroom. The house has a spacious double room en suite with beautiful high windows on the front and side, making the living room extra light. The stained glass suite doors are stained glass and the ground floor has beautiful ornamental ceilings. The original herringbone floor of tropical wood, panel doors and the fireplaces still breathe the time of that time. In the anteroom you will find an original stove (for wood or coal), in the sitting room a fireplace. Through the second set of suite doors you enter the atmospheric light conservatory. Here is a floor of Belgian bluestone with underfloor heating and the conservatory has, in addition to a large roof window, double doors to the sunny, west-facing backyard with shed, greenhouse and garage for no less than 2 cars. The kitchen is equipped with various equipment such as: a 5 burner Boretti stove, American fridge, a fireplace with extractor and a built-in dishwasher. Here is also a funny old hatch to the living room that the staff used to use.
1st floor: landing. Two spacious bedrooms and a 3rd smaller bedroom/office. All with the original wooden floors. The bedroom at the rear has patio doors to the sunny roof terrace. The bedroom at the front overlooks the Leidsevaart. There is also a bathroom at the rear with a beautiful cast iron bath on legs, a separate shower and a sink. Next to the bathroom is a separate toilet.
2nd floor: landing. The very spacious room at the front has an extra floor. It is an apartment in itself. The stairs to the top give access to the sleeping area. Furthermore, this room has a cupboard in which the technical room is located.
At the front you will find the second bathroom with shower, toilet (sanibroyeur) and washing machine and dryer.
On this floor are two more bedrooms at the rear.
Particularities:
Prime location within walking distance of the center
Lovely family home with many original details such as the high ceilings with ornaments, hall with marble floor, authentic architraves and panel doors and of course those beautiful stained glass suite doors.
Year of construction 1890, living area 225 m2
An architect-designed conservatory with a zinc gabled roof over the full width (2005)
A large private backyard on the west with a mature willow and various fruit trees.
A spacious roof terrace where you can enjoy the sun until late in the evening.
Equipped with solar panels (12 pieces, 2015) and a solar boiler
The roofs have been renewed and insulated (2001), garage roof renewed (2006)
The facades have been blasted and re-joined (2001)
Walls and floors are insulated (2017)
See floor plans for dimensions and layout.
| Overdracht | |
|---|---|
| Prijs | € 1.295.000,- k.k. |
| Status | Verkocht |
| Aanvaarding | In overleg |
| Aangeboden sinds | 1 maart 2022 |
| Bouw | |
|---|---|
| Type object | Woonhuis |
| Soort | Eengezinswoning |
| Type | Hoekwoning |
| Bouwjaar | 1890 |
| Isolatievormen | Dubbelglas |
| Oppervlaktes en inhoud | |
|---|---|
| Perceel | 250 m2 |
| Woonoppervlakte | 225 m2 |
| Inhoud | 910 m3 |
| Buitenruimtes gebouwgebonden of vrijstaand | 15 m2 |
| Indeling | |
|---|---|
| Aantal kamers | 10 |
| Aantal slaapkamers | 7 |
| Locatie | |
|---|---|
| Ligging | Aan water, In centrum, Vrij uitzicht |
| Tuin | |
|---|---|
| Type | Achtertuin |
| Staat | Normaal |
| Ligging | West |
| Achterom | Ja |
| Energieverbruik | |
|---|---|
| Energielabel | C |
| Uitrusting | |
|---|---|
| Soorten warm water | CV ketel |
| Parkeer faciliteiten | Openbaar parkeren |