Omschrijving
Modern en sfeervol! Prachtige halfvrijstaande villa uitkijkend over de Crayenerstervaart met een unieke indeling en afwerking. Naast de royale living is er op de parterre een luxe open keuken, bijkeuken met bergvliering en achtertuin op het zuid/westen. Totaal 3 slaapkamers en 2 badkamers. Waar? Om de hoek van de Jan van Goyenstraat op fiets afstand van het centrum van Haarlem en Heemstede.
Dat de woning bijzonder luxe is uitgevoerd zien we onder andere in de living. Ook de keuken en badkamer zijn van hoogwaardig kwaliteit, ontworpen en op maat gemaakt door Tinello. De open eetkeuken is voorzien van fraaie, restaurantwaardige apparatuur waaronder een Viking Professional 6-pits gasfornuis met dubbele oven en teppanyaki plaat, combi stoomoven en uiteraard een Quooker. Op de eerste verdieping is nu o.a. een fraaie master bedroom met 2 balkons en een riante slaapkamer met op maat gemaakte kastenwand . De 2e etage is een grote open slaapkamer met en-suite badkamer voorzien van een douche en sauna.
De ligging is erg fijn. Om de hoek ligt de Jan van Goyenstraat, een perfect winkelstraatje waar je alles kunt vinden wat je dagelijks nodig hebt; een supermarkt, groenteman, keurslager, bakker en een bloemenkraam. Ook op culinair gebied kunt u hier terecht, 2 restaurants waarvan 1 met een Michelinster en een gezellig café. Er zijn diverse scholen van basis en middelbaar onderwijs in de omgeving. Daarnaast ligt Haarlem centrum op fietsafstand. Kortom een heerlijke plek om te wonen.
Goed om te weten
Bijzonder sfeervolle en moderne half-vrijstaande villa
Uitstekend onderhouden
Alle platte daken december 2023 vernieuwd.
Aanlegplaats voor een sloep mogelijk (wachtlijst Gemeente Haarlem)
Op 2 kleine raampjes na geheel dubbel glas
Waar de woning geïsoleerd kon worden is het gedaan
Comfortabele vloerverwarming onder alle stenen vloeren
Achtertuin heerlijk op het zuid/westen
Sfeervolle draaibare houtkachel in living/eetkamer
De keuken is een walhalla voor kookliefhebbers!
Op zolder is eventueel een extra slaapkamer te realiseren
Gefundeerd op “staal”
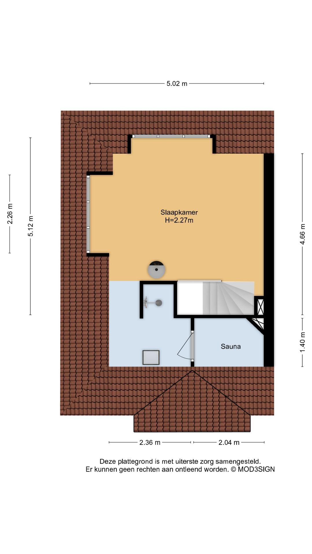
Voor maten en indeling, zie kleurenplattegronden
Oplevering in overleg
Begane grond
Voortuin met entree. Hal met garderobe en meterkast met groepenkast. Toilet met fontein. Toegang tot de royale woonkamer met aan de voorkant de gezellige zitkamer met erker en sfeervolle, draaibare houtkachel. Aan de achterzijde is de eetkamer met fraaie zwarte kozijn met openslaande deuren naar de achtertuin die heerlijk op het zuid/westen ligt. De open keuken is bijzonder goed geoutilleerd en voorzien van hoogwaardige apparatuur, Viking gasfornuis met onderbouw afzuigkap, combi stoomoven met warmhoudlade, Quooker en een vaatwasser. De bijkeuken is bijzonder royaal en voorzien de aansluiting voor het plaatsen van een wasmachine en droger. Een vlizotrap geeft toegang tot de grote vliering boven de bijkeuken. Hier is bijzonder veel bergruimte en is de CV-ketel geïnstalleerd. Vanuit de bijkeuken ook een deur naar de achtertuin.
Eerste verdieping
Overloop. Aan de voorzijde van de woning is de master bedroom met mooie loggia, balkon, vaste kast en mooi afgewerkte bergruimte onder de trap. Aan de achterkant is de grote tweede slaapkamer welke thans in gebruik is als bijzonder fraaie walk-in closet met op maat gemaakte kastenwand, showmeubel en vrijstaand, Solid Surface ligbad. De luxe badkamer is voorzien van een riante dubbele inloopdouche, dubbele wastafel met spiegel, toilet en comfortabele vloerverwarming.
Tweede verdieping
Grote zolderkamer met 2 dakkapellen, een sfeervolle houtkachel en en-suite de badkamer welke voorzien is van een douche en luxe sauna.